Ing. arch. Petra Hlubučková
Projekty
Kontakt
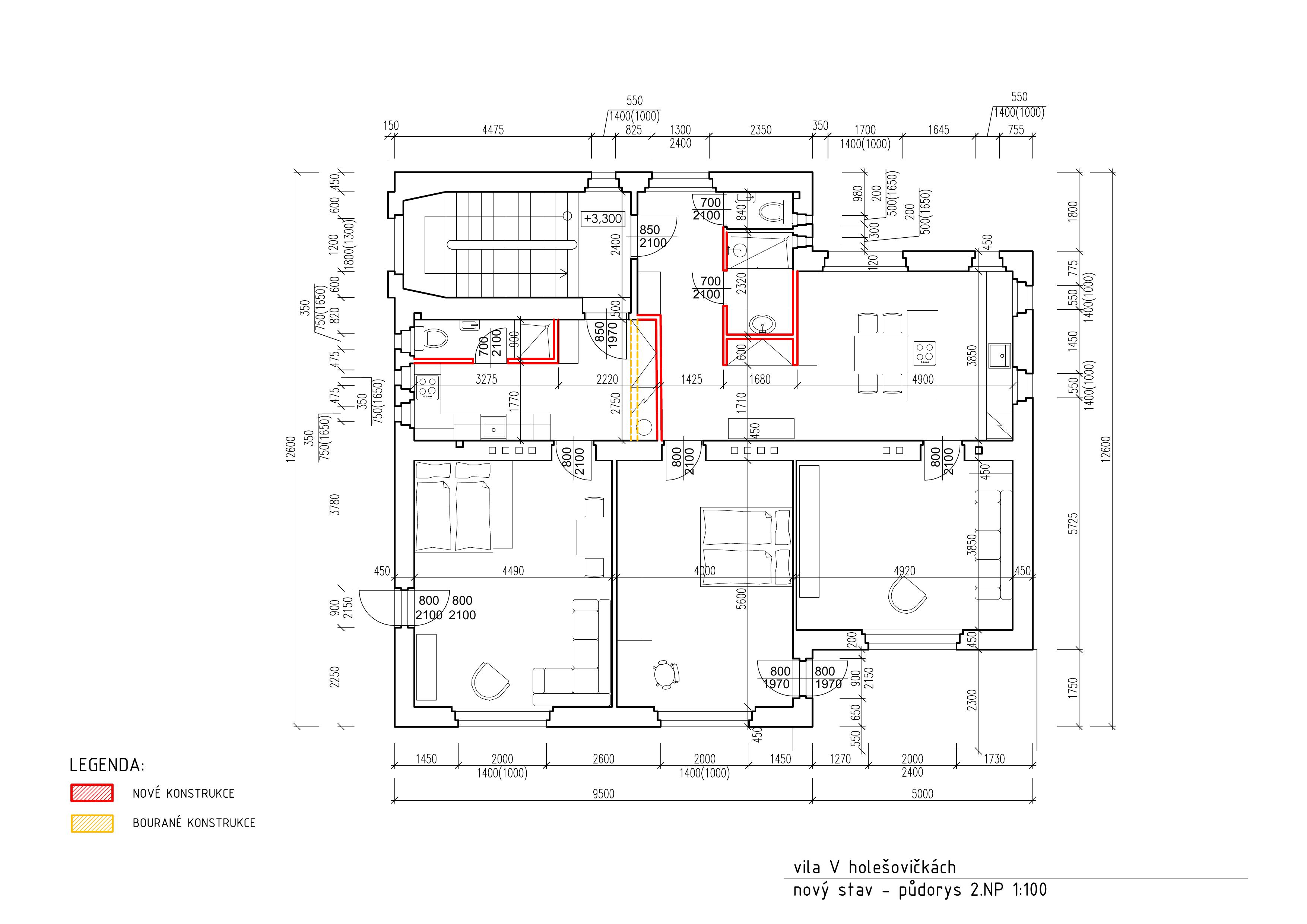
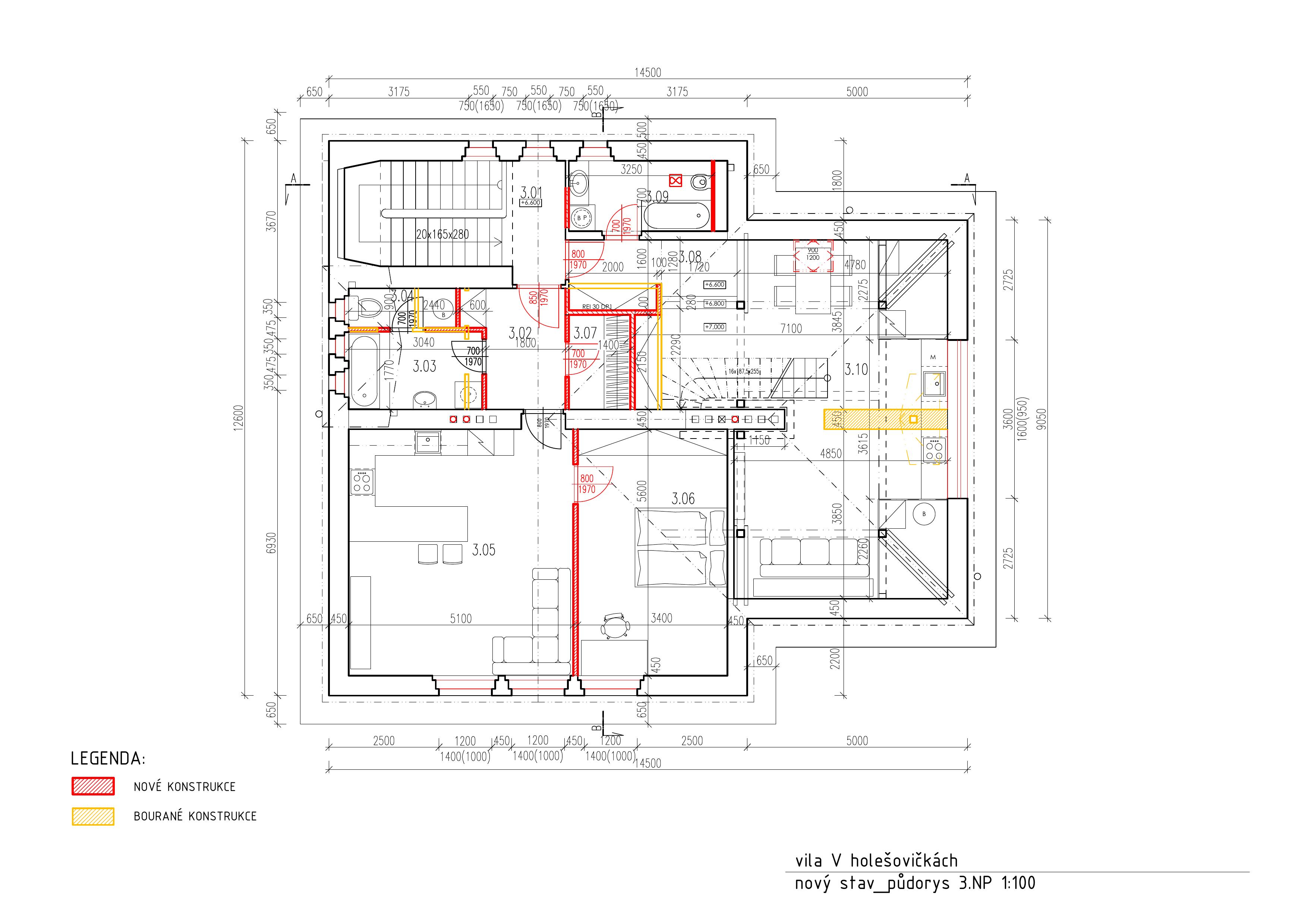
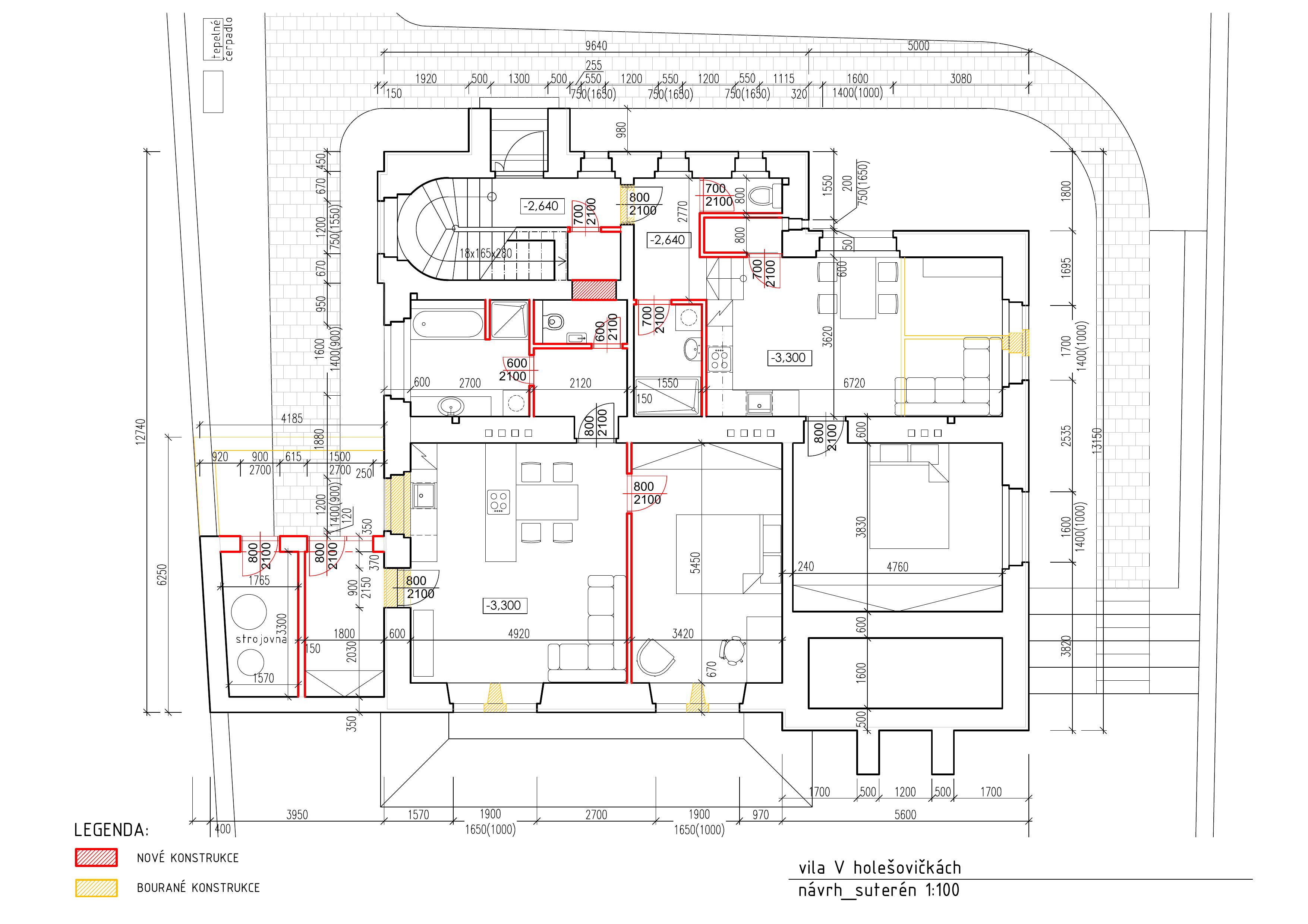
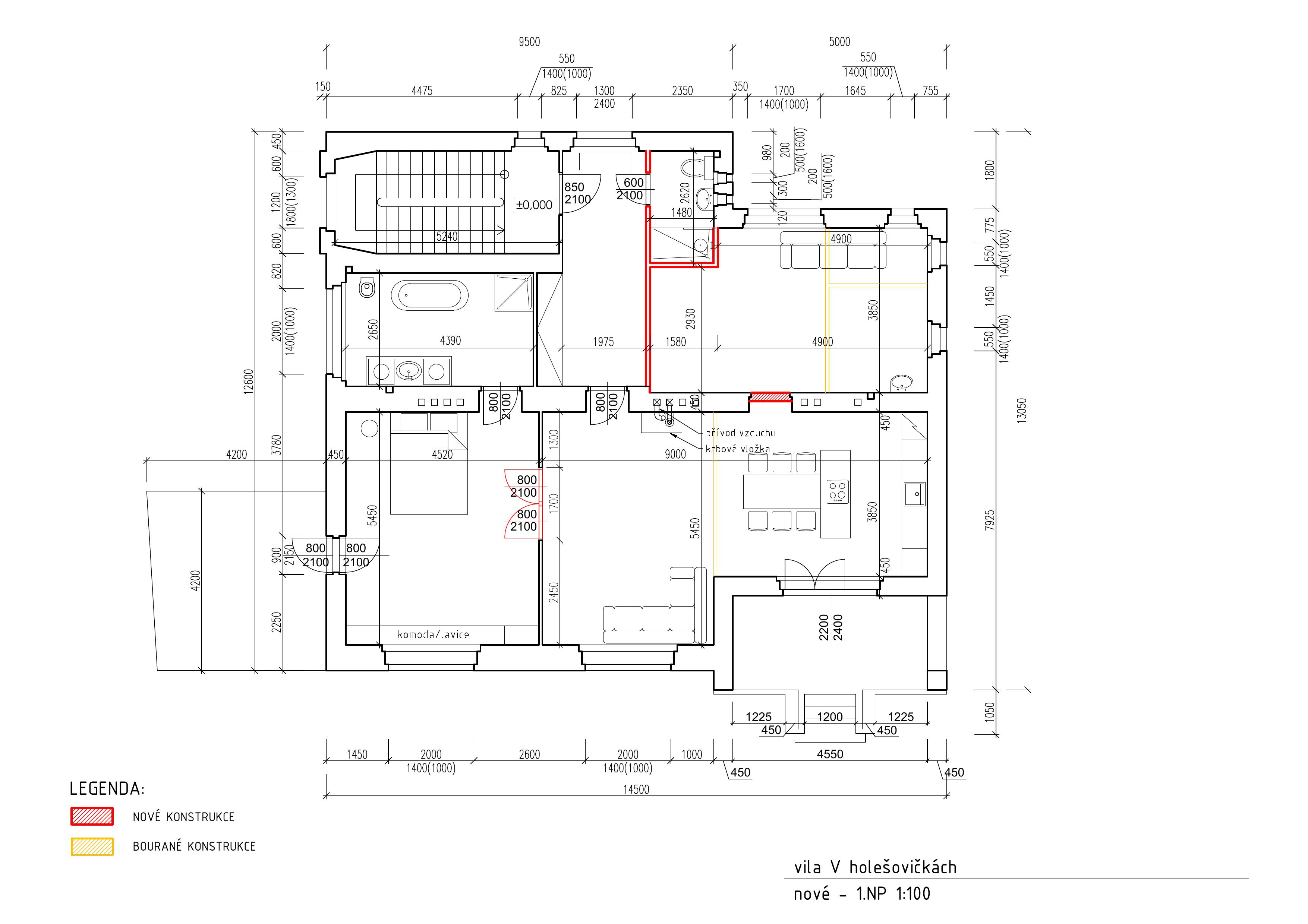
Rekonstrukce vily V Holešovičkách