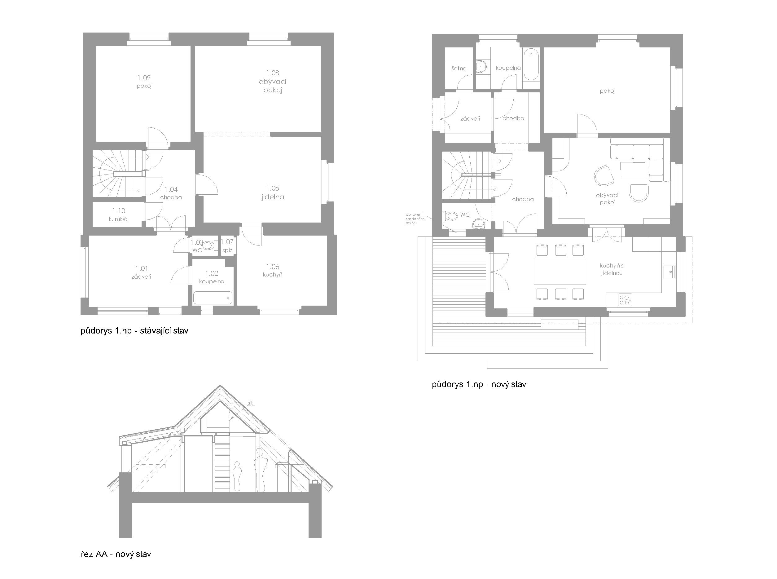
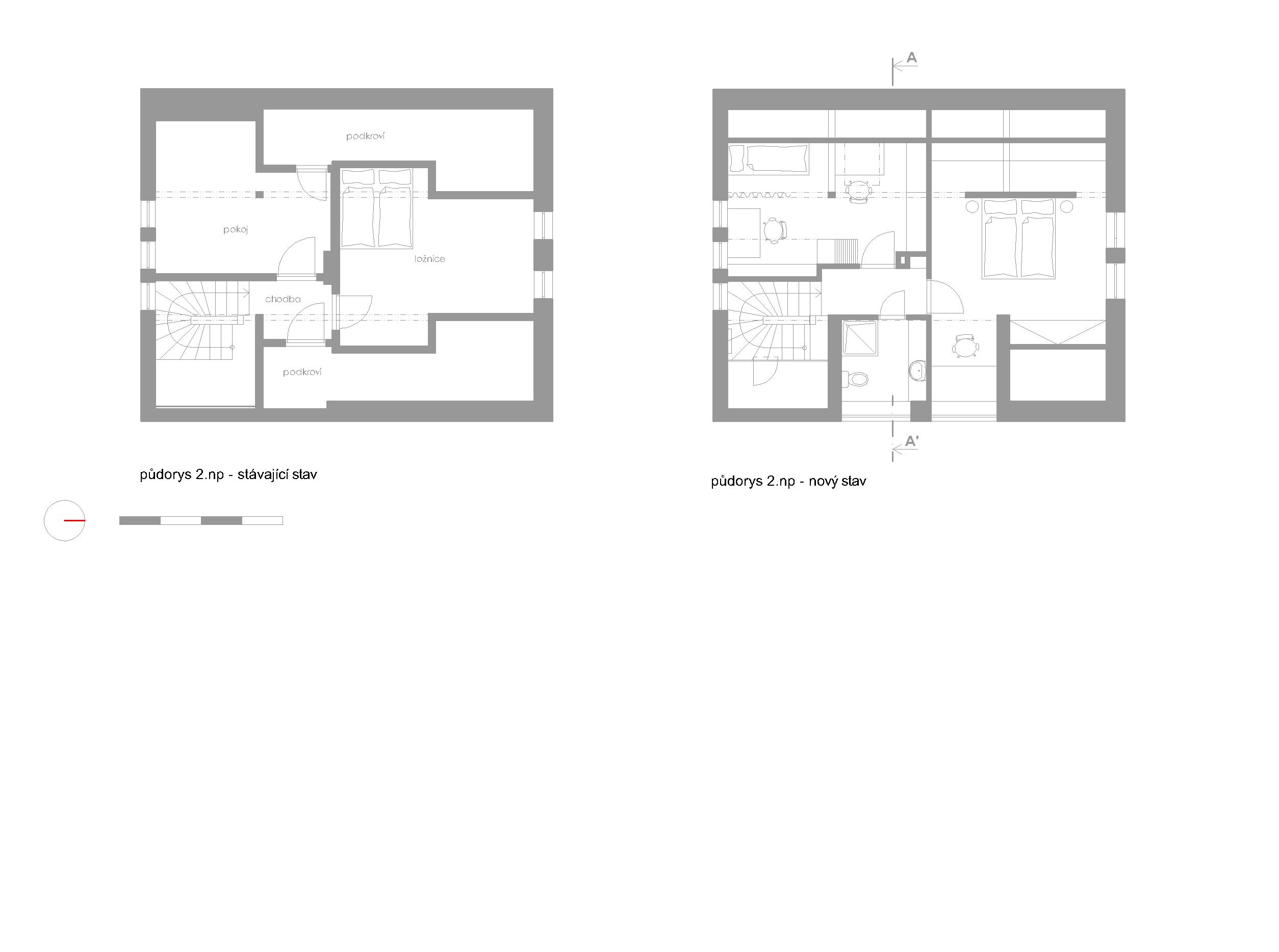
Rekonstrukce chalupy v Chaloupkách

podlahová plocha: 144 m2
zastavěná plocha: 108 m2

K původní chalupě byla v minulosti dostavěna dominantní přístavba, která zakrývá pohled na historický dům. Zároveň budově chybí terasa a snadný přístup do zahrady. V přístavbě jsou zádveří, koupelna a kuchyň. Funkce zádveří a koupelny se záchodem bylo výhodnější přemístit do části domu u silnice a do přístavby otevřené do zahrady na jih koncentrovat pobytové místnosti. Část přístavby je ubourán ve prospěch terasy otevřené k lesu na jihovýchodní stranu. Zmenšením přístavby a volbou jiného zastřešení s viditelnými trámy působí přístavba subtilněji.